物件番号
492800
SYFORME住吉
東京都江東区大島1-5-9
都営新宿線『西大島駅』 徒歩6分/東京メトロ半蔵門線『住吉駅』 徒歩8分
都営新宿線『西大島駅』 徒歩6分/東京メトロ半蔵門線『住吉駅』 徒歩8分の駐車場です。
車室サイズ
全長2100mm 全幅750mm 全高-mm
利用料金
1
日
550 円
(税込)
備考
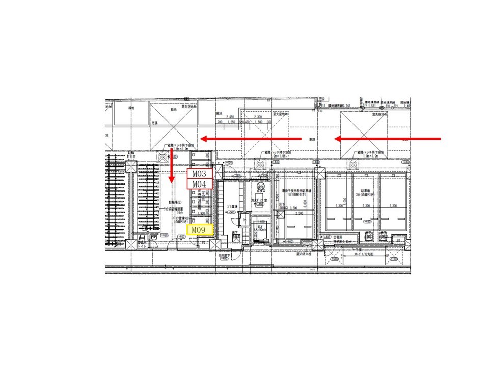
場内レイアウト
このバイク駐車場のおすすめポイント
通勤・通学に是非ご利用ください。
入庫サイズを必ずご自身で確認の上、車室に収まるバイクを駐車して下さい。
空室カレンダー
空あり
満車
予約不可
入庫日と出庫日をご選択ください
※表示された金額は税込み価格です


