物件番号
615257
ララプレイス大阪福島アビリテ
大阪府大阪市福島区吉野5-6-20
JR大阪環状線「西九条駅」徒歩10分/JR大阪環状線「野田駅」徒歩12分
福島区吉野にバイク置き場がオープン!
車室サイズ
全長2100mm 全幅800mm 全高-mm
利用料金
1
日
440 円
(税込)
備考
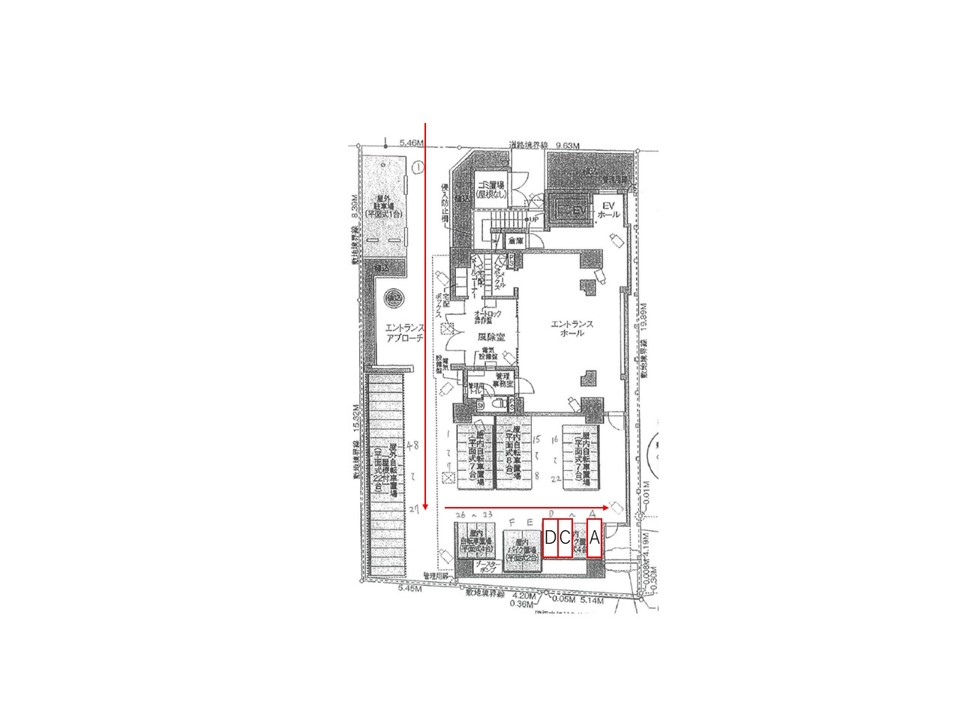
場内レイアウト
このバイク駐車場のおすすめポイント
屋内区画となります!周辺人気エリアのため、ご予約はお早めに!!
入庫サイズを必ずご自身で確認の上、車室に収まるバイクを駐車して下さい。
空室カレンダー
空あり
満車
予約不可
入庫日と出庫日をご選択ください
※表示された金額は税込み価格です



