物件番号
699589
ライオンズマンション新川崎第2
神奈川県川崎市幸区小向西町1-14-1
川崎市幸消防署徒歩11分
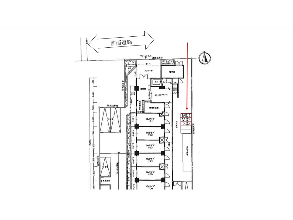
幸区小向西町にバイク駐車場がオープン!
車室サイズ
全長2200mm 全幅800mm 全高-mm
利用料金
1
日
440 円
(税込)
備考
場内レイアウト
このバイク駐車場のおすすめポイント
屋根有区画です!是非お問い合わせください!
入庫サイズを必ずご自身で確認の上、車室に収まるバイクを駐車して下さい。
空室カレンダー
空あり
満車
予約不可
入庫日と出庫日をご選択ください
※表示された金額は税込み価格です


