物件番号
935539
パークステイツ大橋
福岡県福岡市南区塩原3-11-15
西鉄天神大牟田線「大橋駅」徒歩9分/鹿児島本線「竹下駅」徒歩11分
西鉄天神大牟田線「大橋駅」徒歩9分/鹿児島本線「竹下駅」徒歩11分のバイク駐車場です!
車室サイズ
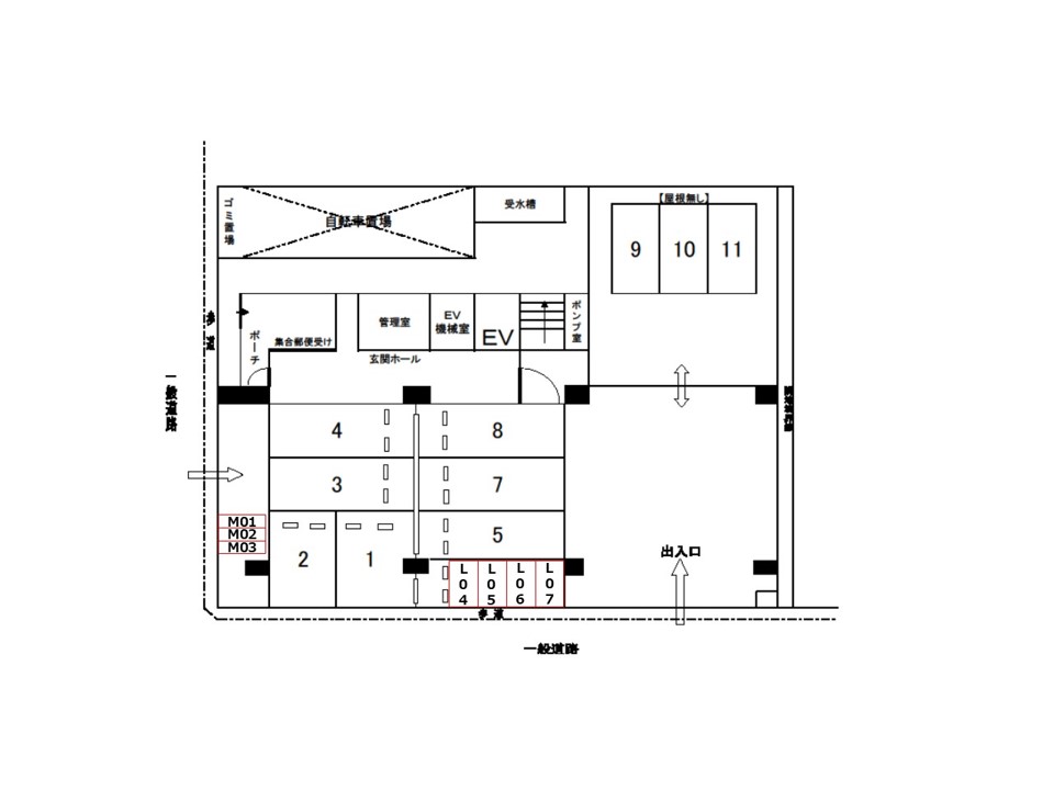
車室:M03
全長2100mm 全幅800mm 全高-mm
車室:L07
全長2200mm 全幅1000mm 全高-mm
利用料金
1
日
440 円
(税込)
備考
場内レイアウト
このバイク駐車場のおすすめポイント
通勤や通学に是非ご利用ください!
入庫サイズを必ずご自身で確認の上、車室に収まるバイクを駐車して下さい。
空室カレンダー
空あり
満車
予約不可
入庫日と出庫日をご選択ください
※表示された金額は税込み価格です




