物件番号
326075
クレイシア森下ステーションサイト
東京都江東区森下1-10-2
都営地下鉄新宿線「森下駅」徒歩1分/セブンイレブン 江東森下1丁目店近く
都営地下鉄新宿線「森下駅」徒歩1分/セブンイレブン 江東森下1丁目店近くのバイク駐車場です!
車室サイズ
全長2100mm 全幅800mm 全高-mm
利用料金
1
日
440 円
(税込)
備考
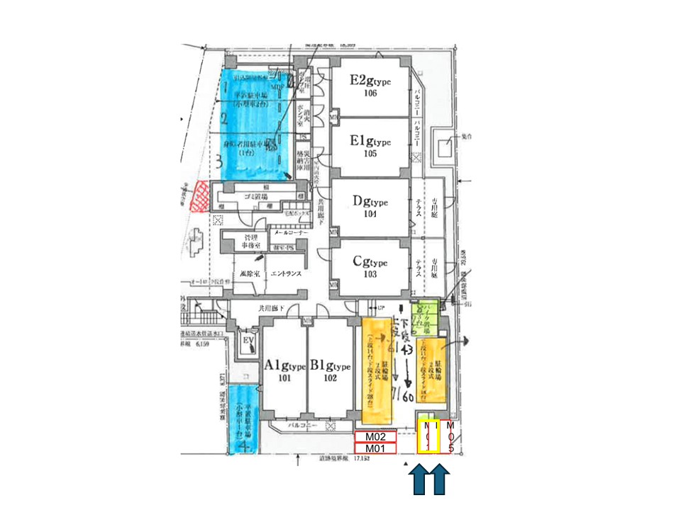
場内レイアウト
このバイク駐車場のおすすめポイント
森下駅徒歩約1分の好立地!通勤・通学に是非ご利用ください!
入庫サイズを必ずご自身で確認の上、車室に収まるバイクを駐車して下さい。
空室カレンダー
空あり
満車
予約不可
入庫日と出庫日をご選択ください
※表示された金額は税込み価格です


