物件番号
176091
プレサンス大阪同心メゾヴィータ
大阪府大阪市北区同心2-10-17
JR大阪環状線「天満駅」徒歩4分/大阪メトロ堺筋線「扇町駅」徒歩5分
扇町駅から徒歩6分の距離にバイク置き場がオープン!
車室サイズ
全長2100mm 全幅800mm 全高-mm
利用料金
1
日
550 円
(税込)
備考
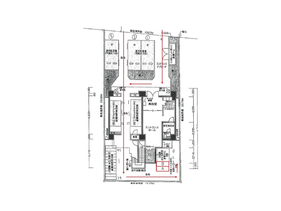
場内レイアウト
このバイク駐車場のおすすめポイント
屋根有のバイク置き場です!周辺人気エリアとなるため、お問い合わせはお早めに!
入庫サイズを必ずご自身で確認の上、車室に収まるバイクを駐車して下さい。
空室カレンダー
空あり
満車
予約不可
入庫日と出庫日をご選択ください
※表示された金額は税込み価格です


