物件番号
191010
ルクシェール横濱吉野町
神奈川県横浜市南区二葉町3-28-12
ブルーライン/吉野町駅 徒歩4分
吉野町駅近くにバイク置場オープン!
車室サイズ
全長2300mm 全幅1050mm 全高-mm
利用料金
1
日
440 円
(税込)
備考
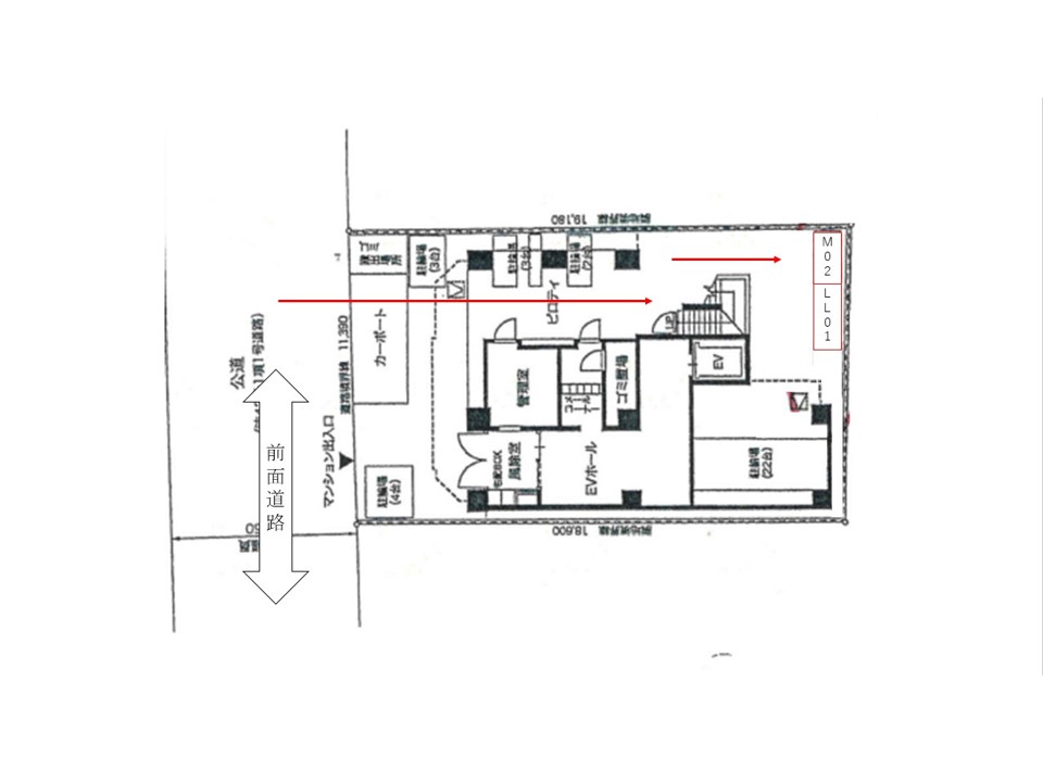
場内レイアウト
このバイク駐車場のおすすめポイント
少台数限定!早い者勝ち!お早めにお問い合わせください!!
入庫サイズを必ずご自身で確認の上、車室に収まるバイクを駐車して下さい。
空室カレンダー
空あり
満車
予約不可
入庫日と出庫日をご選択ください
※表示された金額は税込み価格です



