物件番号

  822840  

PREMIUM CUBE G 市谷甲良町

東京都新宿区市谷甲良町2-24
都営大江戸線「牛込柳町駅」徒歩4分/都営大江戸線「牛込神楽坂駅」徒歩7分

都営大江戸線「牛込柳町駅」徒歩4分/都営大江戸線「牛込神楽坂駅」徒歩7分のバイク駐車場です!

車室サイズ

全長2100mm 全幅800mm 全高-mm

利用料金

1

440 (税込)

備考

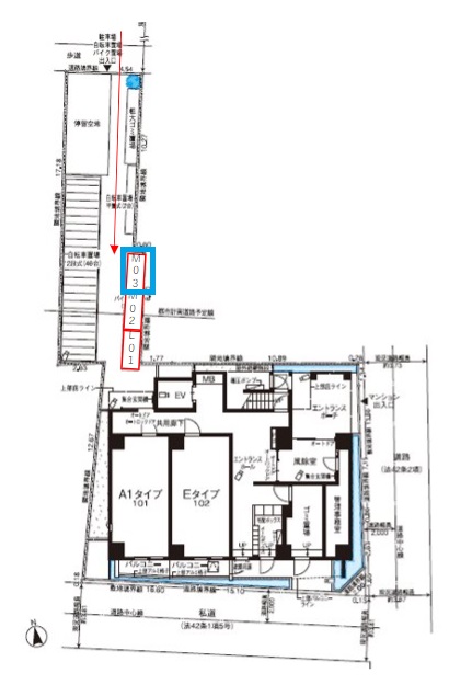
場内レイアウト

PREMIUM CUBE G 市谷甲良町

このバイク駐車場のおすすめポイント

都営大江戸線「牛込柳町駅」徒歩4分/都営大江戸線「牛込神楽坂駅」徒歩7分のバイク駐車場です!通勤などでぜひご利用ください!

入庫サイズを必ずご自身で確認の上、車室に収まるバイクを駐車して下さい。

現在、このバイク駐車場は空き車室がございません。

空室カレンダー

  • 空あり

  • 満車

  • 予約不可

  • 入庫日と出庫日をご選択ください

※表示された金額は税込み価格です

空車カレンダーを見る