物件番号
418088
アール大阪リュクス
大阪府大阪市西淀川区姫里1-15-1
阪神本線『姫島駅』徒歩5分
姫島駅徒歩5分にバイク駐車場がオープン!
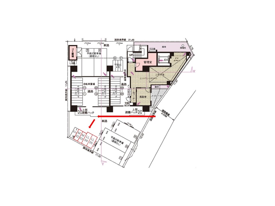
車室サイズ
全長2400mm 全幅1000mm 全高-mm
利用料金
1
日
440 円
(税込)
備考
場内レイアウト
このバイク駐車場のおすすめポイント
大型バイク入庫可能!人気エリアの為、お問合せはお早めに!
入庫サイズを必ずご自身で確認の上、車室に収まるバイクを駐車して下さい。
空室カレンダー
空あり
満車
予約不可
入庫日と出庫日をご選択ください
※表示された金額は税込み価格です


