物件番号
655112
シャトル香貴
福岡県福岡市南区警弥郷2-11-20
JR博多南線『博多南駅』徒歩27分/西鉄天神大牟田線『井尻駅』徒歩38分
JR博多南線『博多南駅』徒歩27分/西鉄天神大牟田線『井尻駅』徒歩38分のバイク駐車場です!
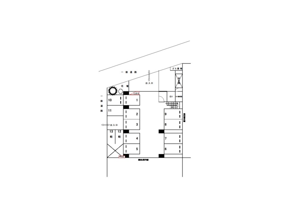
車室サイズ
車室:LL01
全長2300mm 全幅1000mm 全高-mm
車室:M02
全長2100mm 全幅800mm 全高-mm
利用料金
1
日
440 円
(税込)
備考
場内レイアウト
このバイク駐車場のおすすめポイント
通勤や通学に是非ご利用ください!
入庫サイズを必ずご自身で確認の上、車室に収まるバイクを駐車して下さい。
空室カレンダー
空あり
満車
予約不可
入庫日と出庫日をご選択ください
※表示された金額は税込み価格です




